

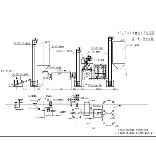
Ф2.2X7米二手球磨機工藝流程圖
工作原理:
球磨機是由水平的筒體,進出料空心軸及磨頭等部分組成,筒體為長的圓筒,筒內裝有研磨體,筒體為鋼板制造,有鋼制襯板與筒體固定,研磨體一般為鋼制圓球,并按不同直徑和一定比例裝入筒中,研磨體也可用鋼段。
根據研磨物料的粒度加以選擇,物料由球磨機進料端空心軸裝入筒體內,當球磨機筒體轉動時候,研磨體由于慣性和離心力作用,摩擦力的作用,使它附在筒體襯板上被筒體帶走,當被帶到一定的高度時候,由于其本身的重力作用而被拋落,下落的研磨體像拋射體一樣將筒體內的物料給擊碎。
物料由進料裝置經入料中空軸螺旋均勻地進入磨機第一倉,該倉內有階梯襯板或波紋襯板,內裝各種規格鋼球,筒體轉動產生離心力將鋼球帶到一定高度后落下,對物料產生重擊和研磨作用。物料在第一倉達到粗磨后,經單層隔倉板進入第二倉,該倉內鑲有平襯板,內有鋼球,將物料進一步研磨。粉狀物通過卸料箅板排出,完成粉磨作業。
筒體在回轉的過程中,研磨體也有滑落現象,在滑落過程中給物料以研磨作用,為了有效的利用研磨作用,對物料粒度較大的一般二十目磨細時候,把磨體筒體用隔倉板分隔為二段,即成為雙倉,物料進入第一倉時候被鋼球擊碎,物料進入第二倉時候,鋼段對物料進行研磨,磨細合格的物料從出料端空心軸排出,對進料顆粒小的物料進行磨細時候,如砂二號礦渣,粗粉煤灰,磨機筒體可不設隔板,成為一個單倉筒磨,研磨體也可以用鋼段。
原料通過空心軸頸給入空心圓筒進行磨碎,圓筒內裝有各種直徑的磨礦介質(鋼球、鋼棒或礫石等)。當圓筒繞水平軸線以一定的轉速回轉時,裝在筒內的介質和原料在離心力和摩擦力的作用下,隨著筒體達到一定的高度,當自身的重力大于離心力時,便脫離筒體內壁拋射下落或滾下,由于沖擊力而擊碎礦石。同時在磨機轉動過程中,磨礦介質相互間的滑動運動對原料也產生研磨作用。磨碎后的物料通過空心軸頸排出。